The Jeffrey
Mid-Century Modern
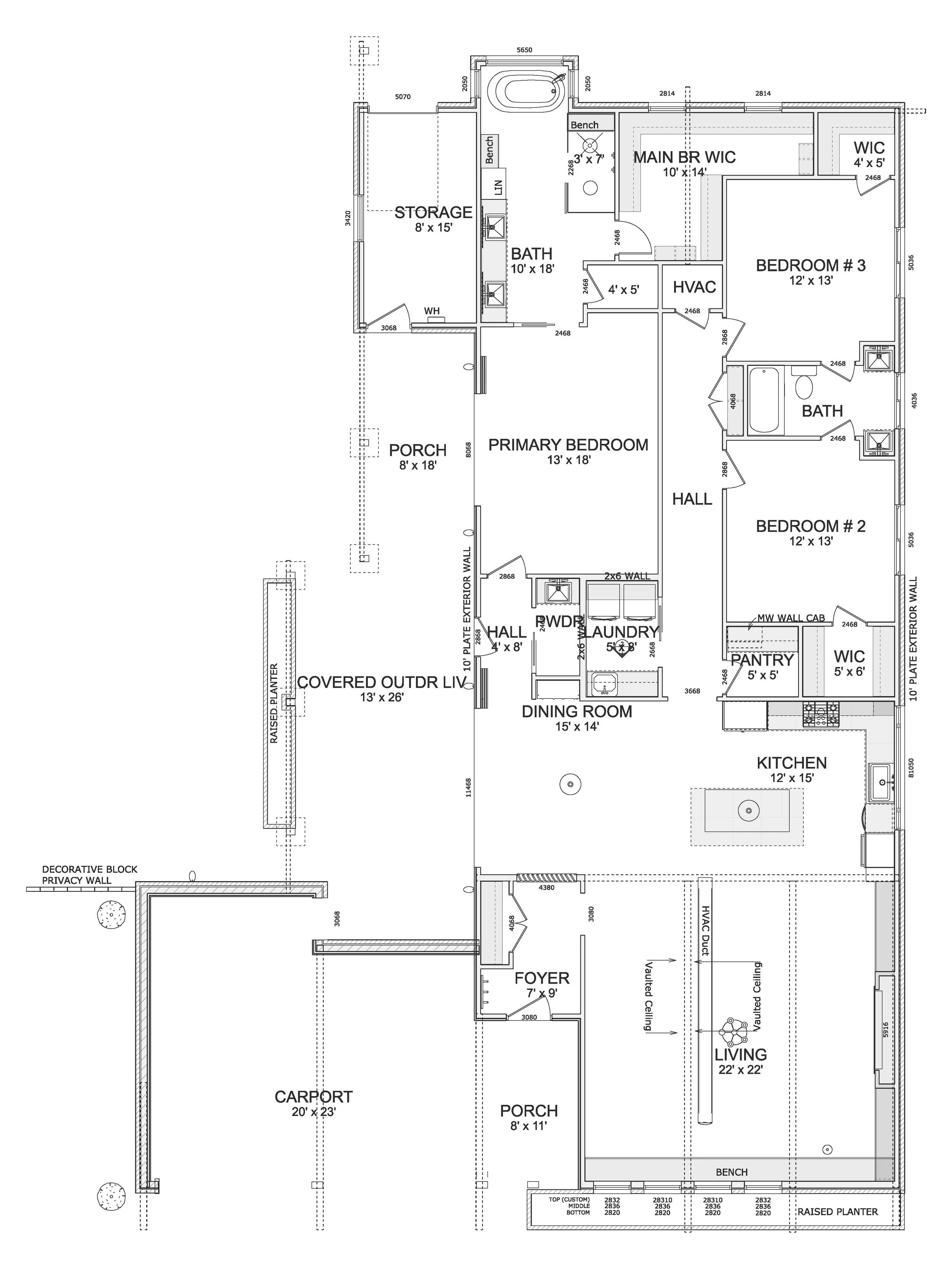
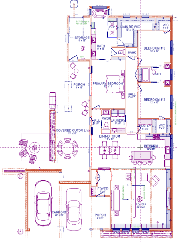
The Jeffrey Floor Plan
FLOORS: 1
Heated AREA: 2,248 sq. ft.
Porches: 488
Outdoor
Storage: 129
Carport: 460
BEDROOMS: 3
BATHROOMS: 2.5
DIMENSIONS: 54’-0” X 80’-3”
Price: $950
for questions OR TO ORDER CALL 256-694-7047
The MCM Jeffrey is designed around how people actually live. Natural light, clean lines, and connected spaces give it an easy flow from indoors to out. The living room centers around expansive windows with a built-in seat while the outdoor spaces feel like a natural extension of the home.
