The Barnstead
FLOORS: 2
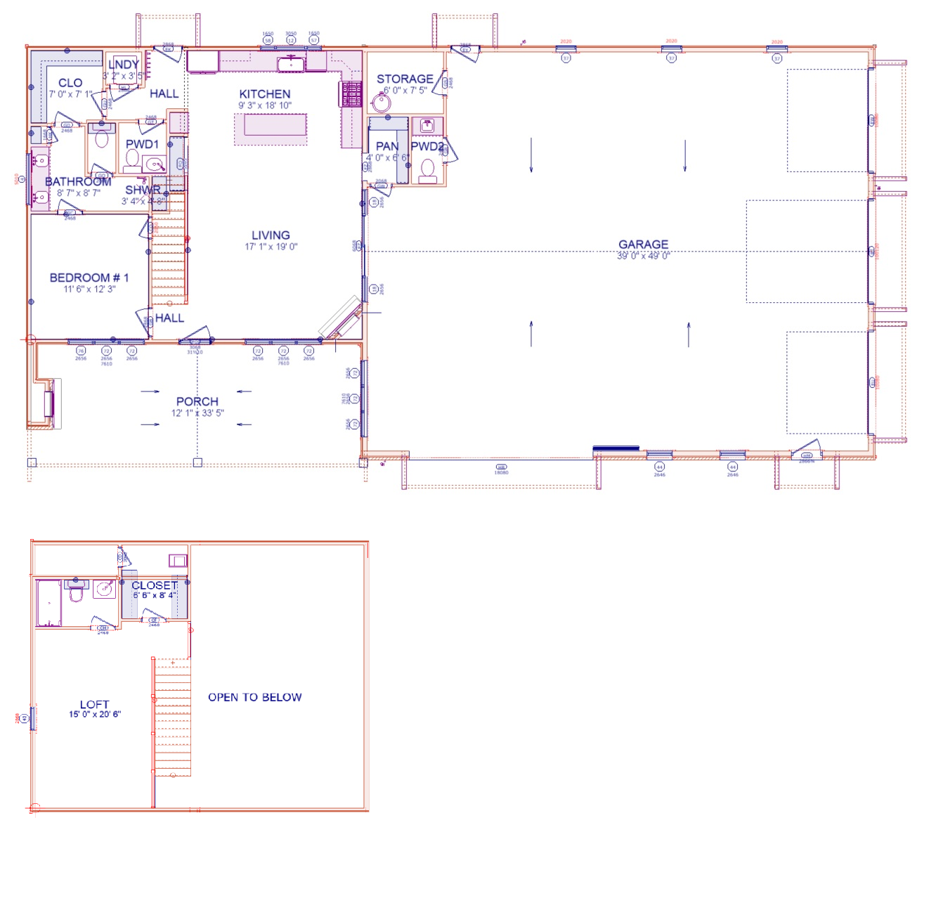
sq ft. AREA: 978 First Floor
364 2nd floor
1,342 total house
1,971 barn
399 porch
BEDROOMS: 1 + LOFT
BATHROOMS: 2 + 2 HALF BATHS
DIMENSIONS: 82’-9” X 40’-11”
Price: $1,750 Purchase Now
The Barnstead blends rustic charm with modern livability, offering a thoughtfully designed layout that feels both spacious and intimate. This two‑story plan maximizes every square foot, pairing an efficient footprint with dramatic volume and character.
There are no compromises in this plan for the most important room in every home, the kitchen. It opens to the large living area and boasts lots of storage. The Barnstead’s unparalleled outdoor living area is quite a space with its rock fireplace and expansive views.
